长沙恒大誉府户型详情
长沙恒大誉府
1/1
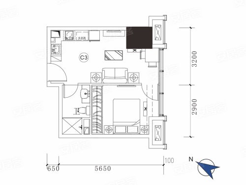
C3户型-商住-49.56平
在售
主力户型
预估价格:
63万起
月供:
3064元
建筑面积:
49.56平
贷款方案
首付总额:
19万元(3成)
贷款总额:
44万元(7成)
利息总额:
29.5万元
贷款年限:
20年
月均还款:
3064元
商业贷款基准利率5.65%