东莞恒大御景半岛户型详情
东莞恒大御景半岛
1/1
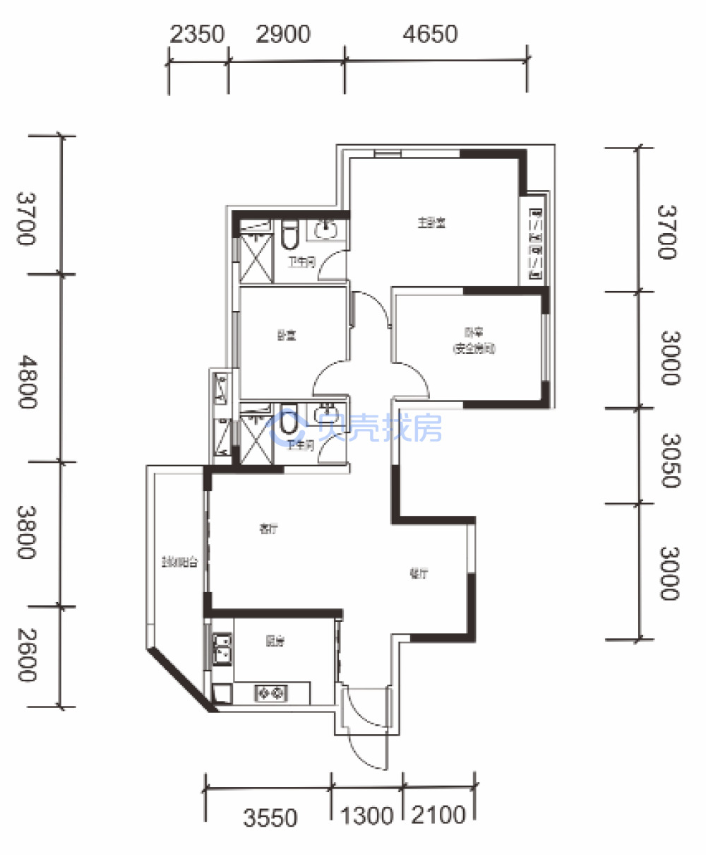
118平米户型-3室2厅2卫-118平
待售
主力户型
预估价格:
224万起
月供:
10933元
建筑面积:
118平
贷款方案
首付总额:
67万元(3成)
贷款总额:
157万元(7成)
利息总额:
105.4万元
贷款年限:
20年
月均还款:
10933元
商业贷款基准利率5.65%