碧桂园天悦户型详情
碧桂园天悦
1/1
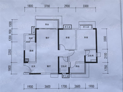
C户型-3室2厅2卫-98平
待售
预估价格:
69万起
月供:
3343元
建筑面积:
98平
贷款方案
首付总额:
21万元(3成)
贷款总额:
48万元(7成)
利息总额:
32.2万元
贷款年限:
20年
月均还款:
3343元
商业贷款基准利率5.65%