紫荆之星户型详情
紫荆之星
1/1
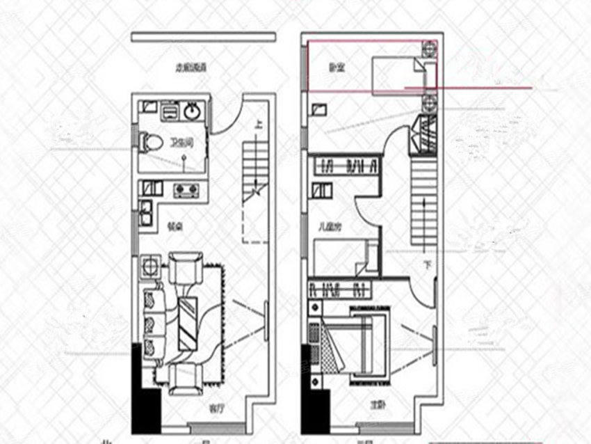
A户型-1室1厅1卫-52.63平
在售
主力户型
预估价格:
89万起
月供:
4318元
建筑面积:
52.63平
贷款方案
首付总额:
27万元(3成)
贷款总额:
62万元(7成)
利息总额:
41.6万元
贷款年限:
20年
月均还款:
4318元
商业贷款基准利率5.65%