江湾雅园户型详情
江湾雅园
1/1
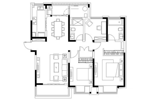
C户型-3室2厅2卫-140平
售罄
预估价格:
493万起
月供:
24025元
建筑面积:
140平
贷款方案
首付总额:
148万元(3成)
贷款总额:
345万元(7成)
利息总额:
231.6万元
贷款年限:
20年
月均还款:
24025元
商业贷款基准利率5.65%